Through our association with famed architect Hadi Teherani, Panache is already being recognised as one of the most beautiful and well-designed residential projects of North Bangalore with a green focus.
We are immensely proud of our collaboration with the internationally acclaimed architect Hadi Teherani. When designing Panache, Hadi's underlying belief was that connecting people emotionally to their home and place of work, and creating an atmosphere of identification and inspiration, requires more than just architectural space. Architecture provides the foundation for a spatial idea. But only the realisation of a complex design idea - from the smallest room furnishing to the identity of an entire project - can provide a comprehensive overall design concept.
Panache is all set to be North Bangalore's Newest Landmark! A delicate balance between style and substance, with a healthy dose of sustainability. Built on BIM's international design standards, and constructed to the BCM Group's exacting quality specifications, Panache is a space that is inviting, soothing, and indulgent all rolled into one. Your last word in affordable luxury, in Bengaluru.
- Hadi Teherani Internationally awarded German Architect & Designer
- Hadi Teherani Internationally awarded German Architect & Designer
We believe that more is always better. It's why we've invested so much in making sure that Panache is unlike any other apartment project in the affordable luxury sector, offering ample living space for families large and small to live their lives to the fullest.
To view the specific floor plans of various apartment types, please click on the links below:
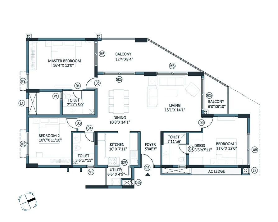
Spacious Vaastu-compliant units with larger-than-standard windows for ample cross ventilation.
| Saleable Area: | 2,049 sq. ft. |
| Carpet Area: | 1,335 sq. ft. |
| Balcony Area: | 213 sq. ft. |
| Bedrooms: | 3 |
| Bathrooms: | 3 |
| Total Units: | 4 |
| Floor Numbers: | Ground, 3, 6, 9 |
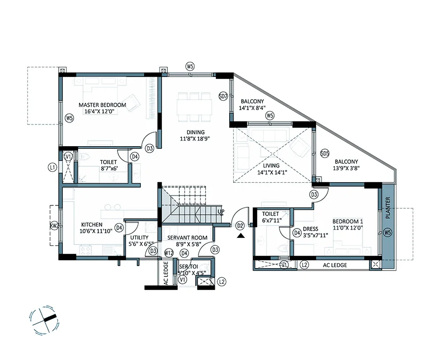
The largest homes you will find at BCM Panache, these units come with 8 large rooms + a kitchenette and maid's room. These units too afford you the luxury to choose your own flooring for the bedrooms & bathrooms.
| Saleable Area: | 4,045 sq. ft. |
| Carpet Area: | 2,707 sq. ft. |
| Balcony Area: | 349 sq. ft. |
| Bedrooms: | 4 |
| Bathrooms: | 4 + Servant's Toilet |
| Total Number of Units: | 4 |
| Floor Numbers: | 1&2, 4&5, 7&8, 10&11 |
Customise the flooring of your bedrooms & bathrooms, while benefitting from larger than standard windows for cross ventilation, along with 2-side balconies and planter boxes.
| Saleable Area: | 1,948 sq. ft. |
| Carpet Area: | 1,310 sq. ft. |
| Balcony Area: | 162 sq. ft. |
| Bedrooms: | 3 |
| Bathrooms: | 3 |
| Total Number of Units: | 1 |
| Floor Numbers: | 1 |
Enjoy customisations in the form of choosing your own flooring in the bedrooms & bathrooms, larger than standard window sizes for cross ventilation, along with 2-side balconies with planters.
| Saleable Area: | 2,011 sq. ft. |
| Carpet Area: | 1,310 sq. ft. |
| Balcony Area: | 209 sq. ft. |
| Bedrooms: | 3 |
| Bathrooms: | 3 |
| Total Number of Units: | 3 |
| Floor Numbers: | 4, 7, 10 |
These ground floor only units, allow you easy access to most of the amenities. Further, the larger than standard window sizes ensure ample sunlight & cross ventilation through the day, and a unique Panache-only feature of planters in your balconies.
| Saleable Area: | 1,729 sq. ft. |
| Carpet Area: | 1,231 sq. ft. |
| Balcony Area: | 75 sq. ft. |
| Bedrooms: | 3 |
| Bathrooms: | 3 |
| Total Number of Units: | 6 |
| Floor Numbers: | Ground |
We've got the most number of units available in this type - so, you can be spoilt for choice! If that isn't enough, we're also offering you the option of customisation the flooring of your Bedrooms & Bathrooms.
| Saleable Area: | 1,790 sq. ft. |
| Carpet Area: | 1,231 sq. ft. |
| Balcony Area: | 121 sq. ft. |
| Bedrooms: | 3 |
| Bathrooms: | 3 |
| Total Number of Units: | 6 |
| Floor Numbers: | (A Single Unit of 1,786 sq. ft.) on 1 (30 Units of 1,790 sq. ft.) on 2, 4, 6, 8, 10 |
We have 30 units available in this configuration, spread across the 3rd, 5th, 7th, 9th, and 11th Floors. So, go ahead & take your pick! As a reminder, all units come with 2-side balconies with planter boxes.
| Saleable Area: | 1,846 sq. ft. |
| Carpet Area: | 1,231 sq. ft. |
| Balcony Area: | 164 sq. ft. |
| Bedrooms: | 3 |
| Bathrooms: | 3 |
| Total Number of Units: | 30 |
| Floor Numbers: | 3, 5, 7, 9, 11 |
37 Acres of Lush Plantation, Developed & Maintained by the Council of Scientific and Industrial Research - Central Institute of Medicinal and Aromatic Plants (CSIR) Adjoining Your Home, At BCM Panache.
# 3, Judicial Layout
Allalasandra, Yelahanka
Bengaluru - 560 065
Karnataka, India
+91 99641 30033
Call to schedule an appointment
with our Sales Team, based on
the timings are laid out below…
10 a.m. to 6 p.m.
Monday - Sunday
